建築家条件付き土地とは

 

建築家条件付き土地とは私たちが考えた新しい土地売却の形です。

土地の豊かな可能性を引き出すために、複数の建築家のプランを用意して選んでいただく提案となっています。

プラン実現のために必要な、経験ある優れた建築家と、その豊かな発想を実現する技術力のある建設会社を用意しています。

 

今回のストーリーは、先代オーナー様から40年以上暮らした土地を、現在のオーナー様が譲り受けたことから始まりました。

そして現在のオーナー様は先代の愛した土地をより豊かなものへと昇華させ、つなげたいと考え、ご相談をいただきました。

私たちは基本コンセプトや暮らし方、家族構成などを設定し、今回は3社4名の建築家と

それぞれ異なる条件によるプラン(A, B, C)を提案し、プロジェクトをスタートします。

 

       共通コンセプト

       ・ 在宅ワークに対応できるスペースを設けること

       ・ 敷地内に1台分駐車場を確保すること

       ・ 近隣の緑を活かすこと

plan A

異なる条件

・家族構成=単身もしくは夫婦2名

・コストを意識したプラン

plan B

異なる条件

・家族構成=3名から4名

 (夫婦2名+子供1~2名)

・ガレージを設けること

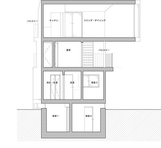
plan C

異なる条件

・家族構成=4~5名

・地下室を設けること

*画像部分をクリックすると、3つのプランの詳しい説明がご覧いただけます

copylight 2020 eiko kenchikufudousan-bu All Rights Reserved.